
Soluções automáticas inovadoras para garagens residenciais de alto desempenho
A Refral foi a empresa responsável pela instalação das portas de garagem automáticas do novo empreendimento BeLiving, Habitação com Custos Controlados (HCC), em Loulé, promovido pela GFH e construído pela Ferreira Build Power SA.
Este conjunto habitacional, composto por quatro blocos residenciais e 80 habitações acessíveis, destaca-se pela qualidade construtiva e pelas soluções técnicas que garantem funcionalidade, segurança e eficiência energética.
Desafio técnico: espaço reduzido e uso intensivo
Cada edifício dispõe de uma garagem com cerca de 30 lugares, exigindo um sistema de abertura rápido, silencioso e adequado a uso intensivo.
A limitação de espaço na padieira impossibilitava a instalação de portas seccionadas convencionais, que roubariam altura livre útil e comprometeriam a circulação.
Adicionalmente, em três dos quatro blocos, a porta necessitava de uma porta de emergência integrada, por se tratar da única saída da garagem.

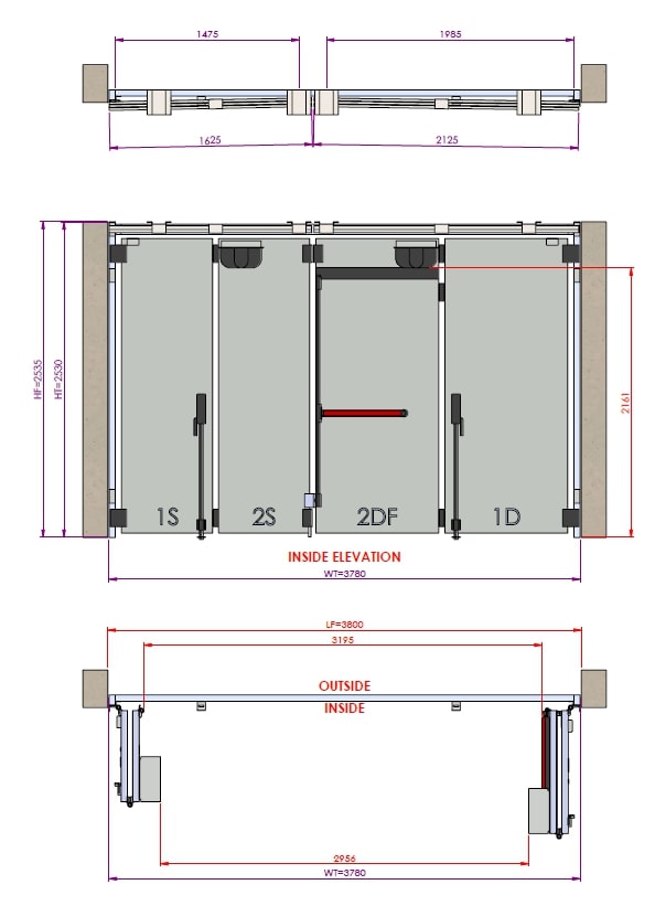
Solução Refral: portas de harmónio automáticas de 4 folhas
Perante estas condicionantes, a Refral desenvolveu e instalou portas de harmónio automáticas com quatro folhas móveis e abertura bilateral, concebidas para suportar uso intensivo diário e garantir fluxo de tráfego rápido e seguro.
A solução foi personalizada para as características do edifício, oferecendo robustez, fiabilidade e integração arquitetónica.
Para chegarmos a esta solução, exigiu um estudo profundo com diversas condicionantes de modo a conciliar diferentes fatores: estético, arquitetónico, técnico e funcional.

Principais vantagens face às portas seccionadas
- Menor necessidade de espaço na padieira;
- Abertura e fecho significativamente mais rápidos;
- Elevada durabilidade e baixo nível de ruído;
- Manutenção simplificada;
- Possibilidade de incorporar porta de emergência integrada;
- Estética uniforme e integração harmoniosa com o edifício.

Controlo de acessos com segurança reforçada – Sistema Clemsa Mutan II
Para o controlo de acessos, a Refral implementou o sistema de emissores Clemsa Mutan II, com códigos encriptados e programação individualizada, impossibilitando a cópia ou clonagem dos comandos.
Este sistema garante maior segurança para utilizadores e promotores, assegurando uma gestão fiável dos acessos às garagens.
Resultados e valor acrescentado
Com esta instalação, a Refral demonstrou mais uma vez a sua capacidade de adaptar soluções automáticas às exigências de cada projeto, oferecendo alternativas inovadoras quando as soluções convencionais não são viáveis.
As portas de harmónio automáticas Refral provaram ser a escolha ideal para contextos com uso intensivo, limitação de espaço e requisitos de segurança elevados.
“A nossa prioridade é oferecer soluções técnicas que aliam fiabilidade, desempenho e segurança, garantindo valor acrescentado a arquitetos, engenheiros e promotores.” — Equipa Técnica Refral


Ficha técnica resumida
- Tipo de porta: Porta de harmónio Automática
- Número de folhas: 4 folhas móveis com abertura bilateral
- Aplicação: Garagens residenciais com uso intensivo
- Equipamento de controlo de acessos: Sistema de emissores Clemsa Mutan II (encriptado)
- Características adicionais: Porta de emergência integrada (3 blocos)
- Promotor: GFH
- Construtor: Ferreira Build Power
- Local: Loulé, Portugal
A Refral é especialista em portas automáticas, barreiras e sistemas de controlo de acessos, desenvolvendo soluções à medida para edifícios residenciais, industriais e comerciais.
Com mais de 20 anos de experiência, a empresa é referência nacional em inovação, fiabilidade e integração arquitetónica.
🔗 Saiba mais sobre as nossas soluções automáticas em www.refral.pt








